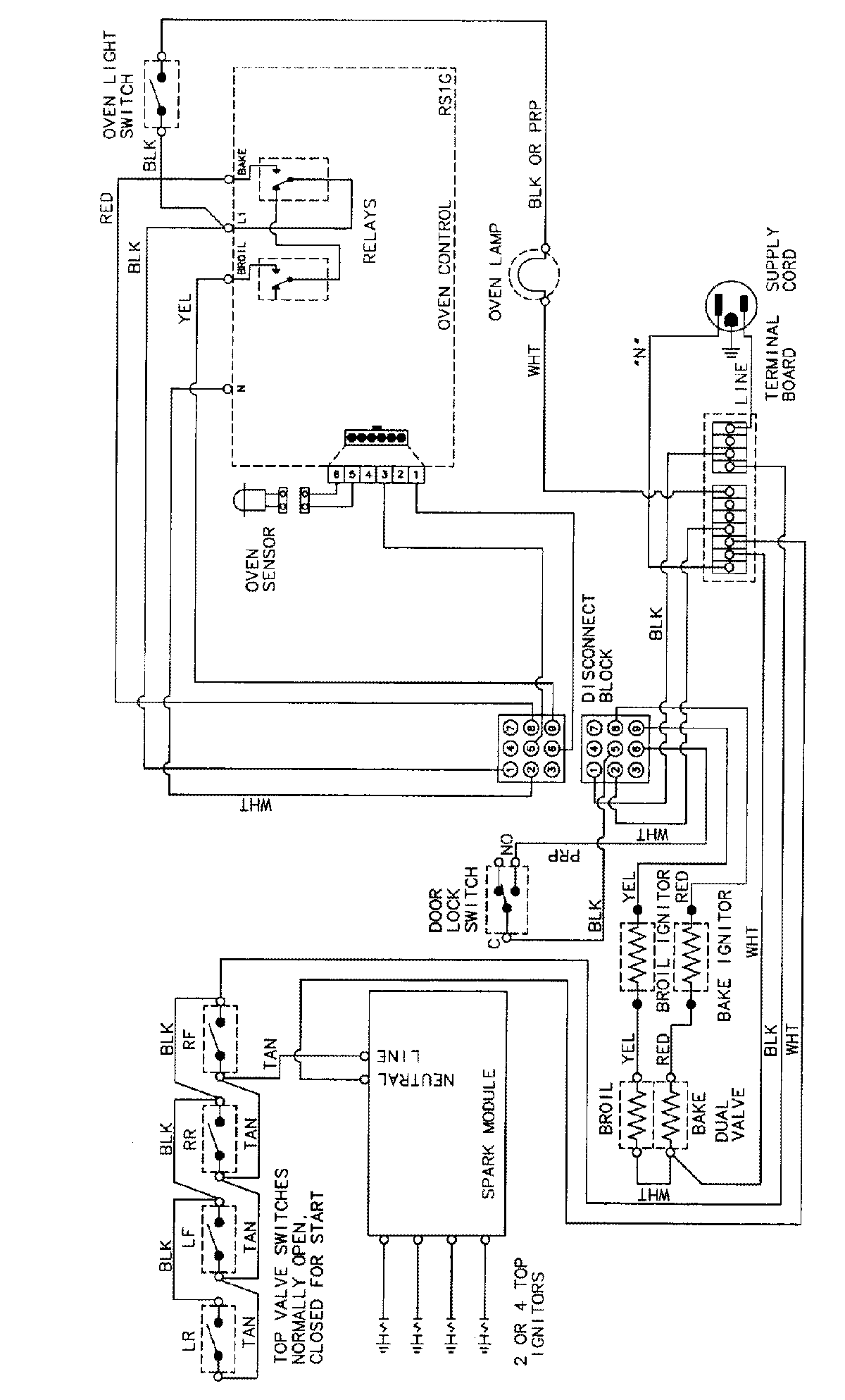
DCF3305BK 07 – WIRING INFORMATIONadmin2025-04-26T08:56:33+00:00DCF3305BK 07 – WIRING INFORMATION ProductsPositionProductNIMAY 15002242