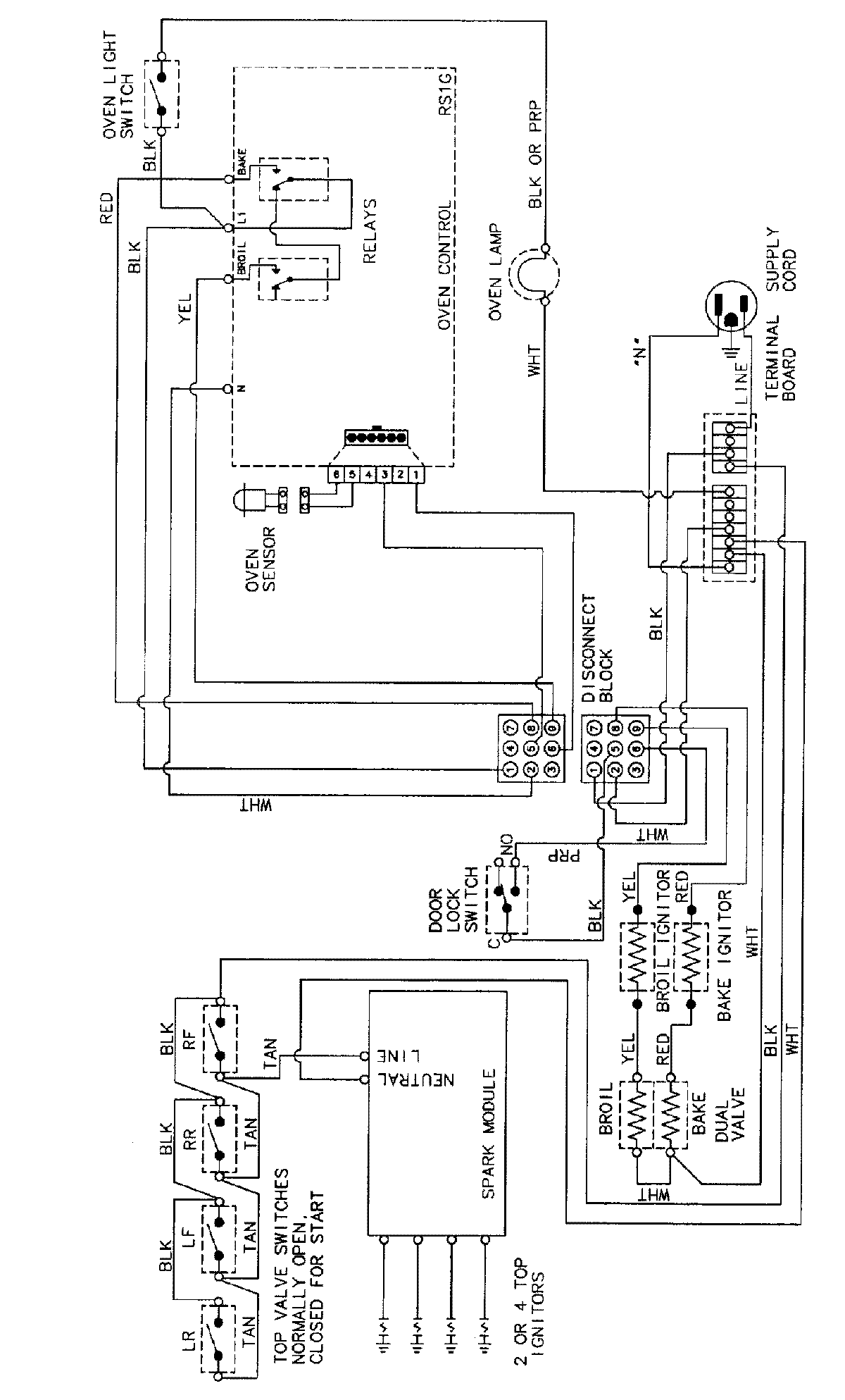
DCF3305BT 07 – WIRING INFORMATIONadmin2025-04-26T08:56:25+00:00DCF3305BT 07 – WIRING INFORMATION ProductsPositionProductNIMAY 15002242