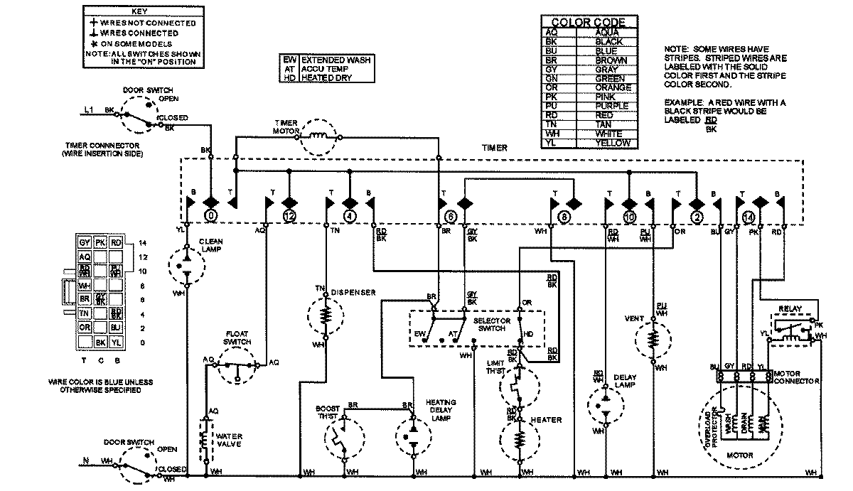
DDW2470AWP 08 – WIRING INFORMATIONadmin2025-04-26T08:56:34+00:00DDW2470AWP 08 – WIRING INFORMATION ProductsPositionProductNIMAY 15002867