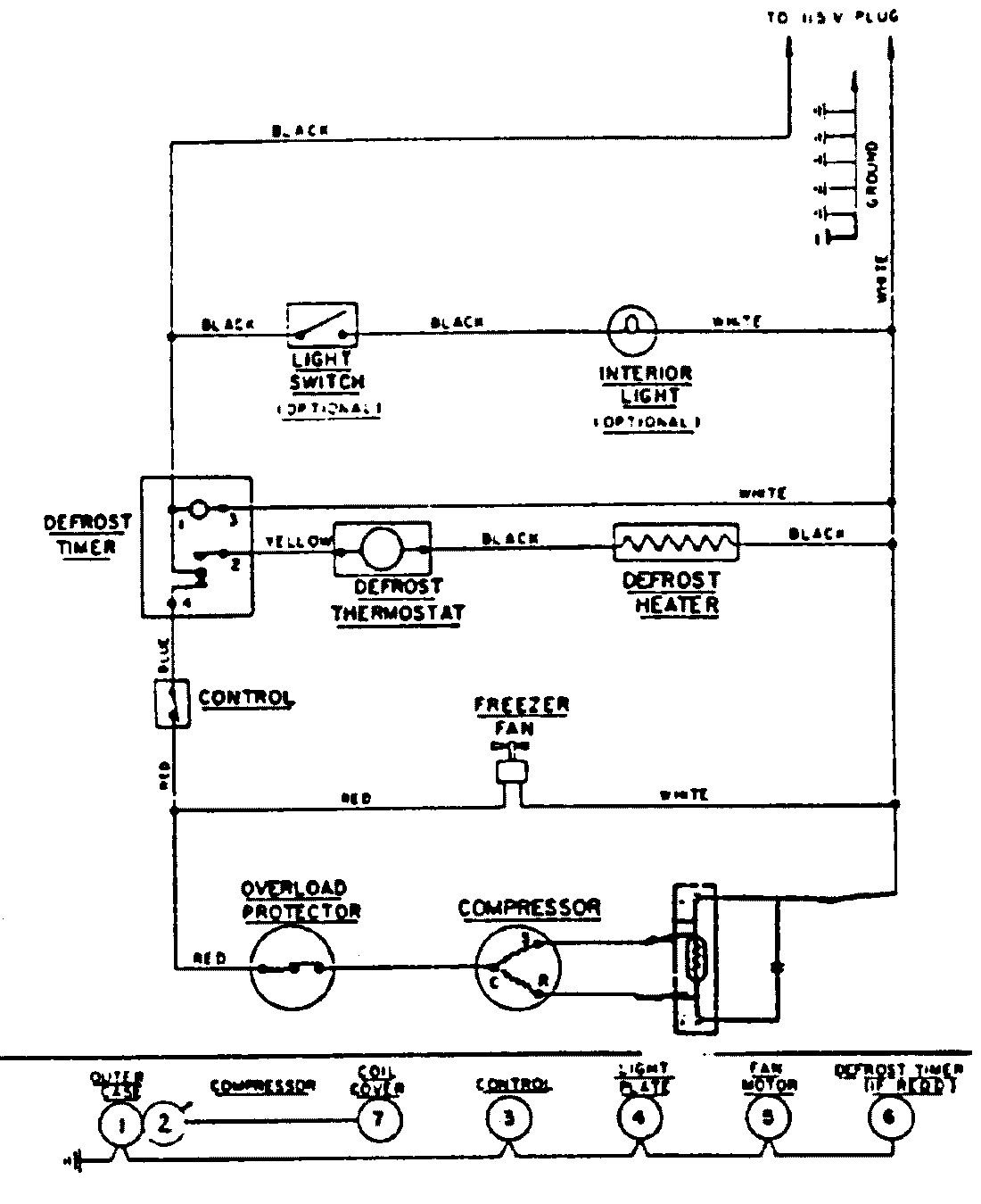
DNF20J 04 – WIRING INFORMATIONadmin2025-04-26T08:56:31+00:00DNF20J 04 – WIRING INFORMATION ProductsPositionProductNIMAY 15002332