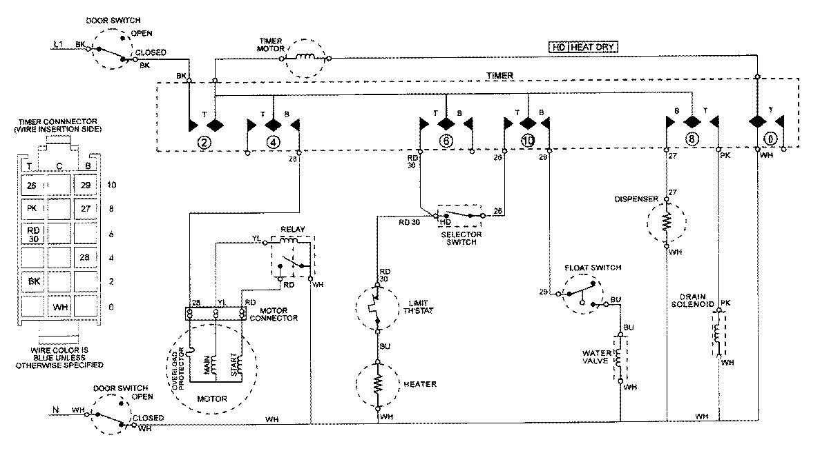
DU2500B 07 – WIRING INFORMATIONadmin2025-04-26T09:37:14+00:00DU2500B 07 – WIRING INFORMATION ProductsPositionProductNIMAY 15001980