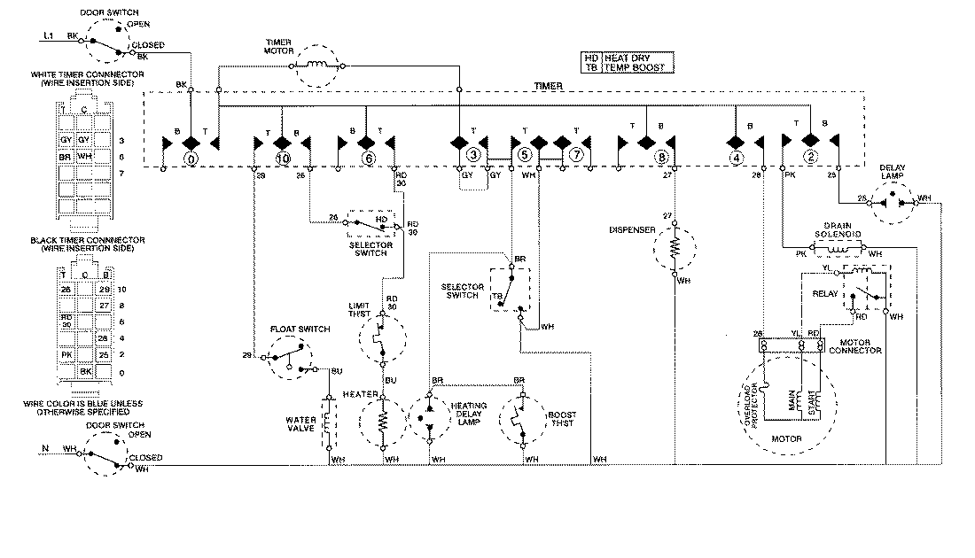
DU4500B 07 – WIRING INFORMATIONadmin2025-04-26T09:38:02+00:00DU4500B 07 – WIRING INFORMATION ProductsPositionProductNIMAY 15002071