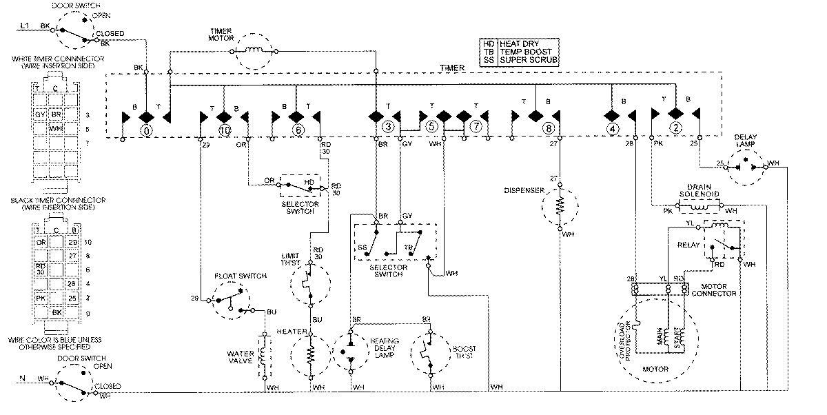
DU6500B 07 – WIRING INFORMATIONadmin2025-04-26T08:39:23+00:00DU6500B 07 – WIRING INFORMATION ProductsPositionProductNIMAY 15002060