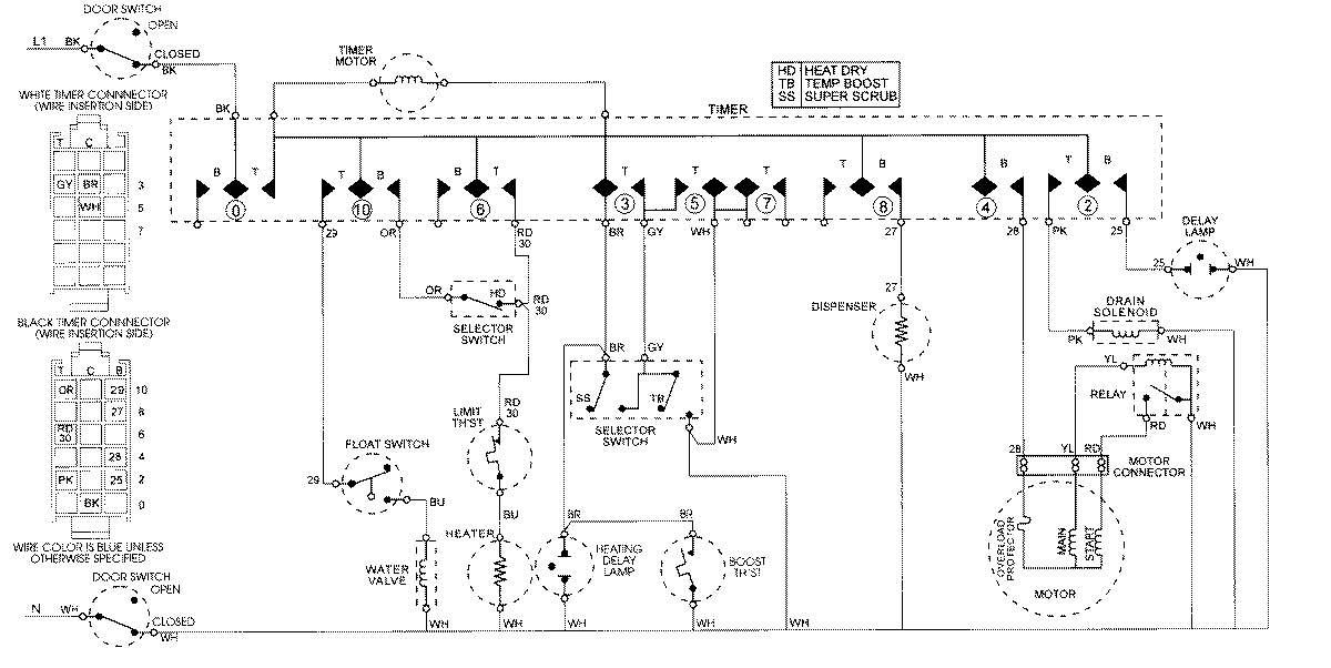
DU6500V 07 – WIRING INFORMATIONadmin2025-04-26T08:39:29+00:00DU6500V 07 – WIRING INFORMATION ProductsPositionProductNIMAY 15002060