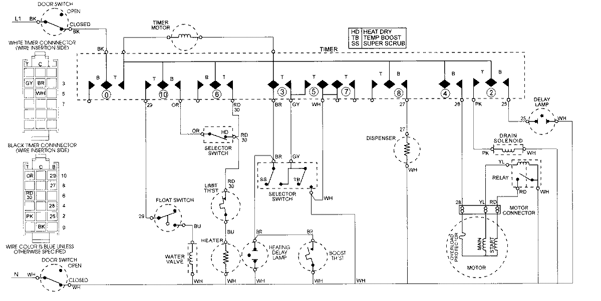
DU6550P 07 – WIRING INFORMATIONadmin2025-04-26T08:39:07+00:00DU6550P 07 – WIRING INFORMATION ProductsPositionProductNIMAY 15002060