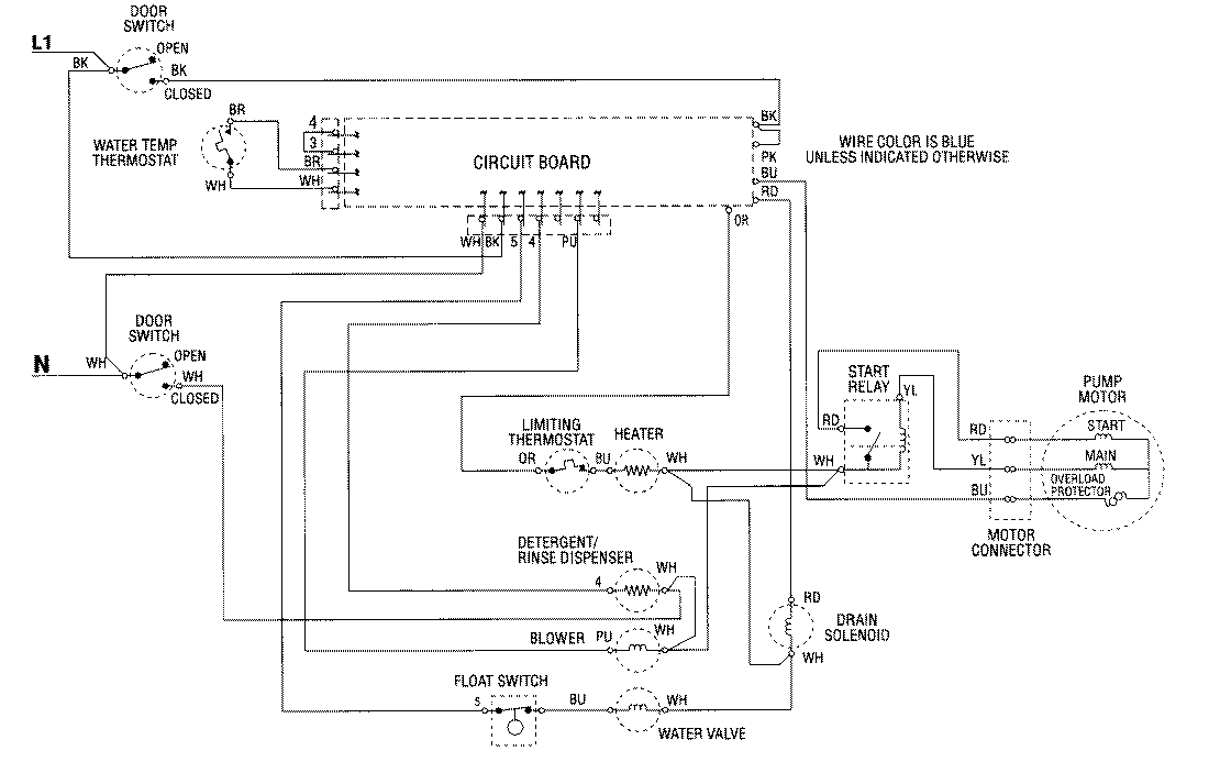
DU8000V 08 – WIRING INFORMATIONadmin2025-04-26T08:39:07+00:00DU8000V 08 – WIRING INFORMATION ProductsPositionProductNIMAY 15001986