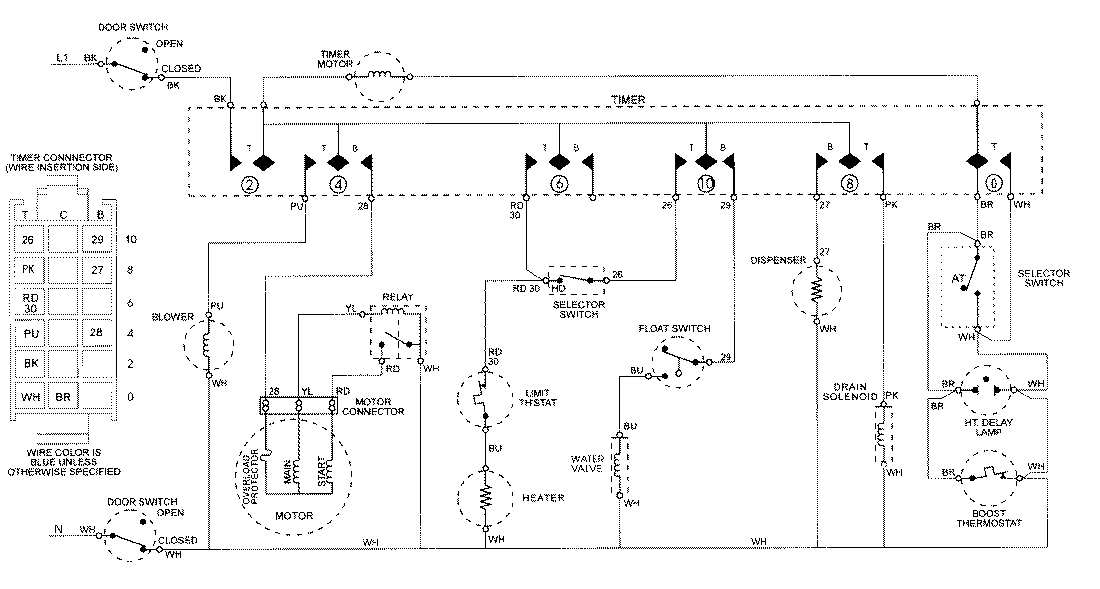
DW711B 08 – WIRING INFORMATIONadmin2025-04-26T08:39:31+00:00DW711B 08 – WIRING INFORMATION ProductsPositionProductNIMAY 15001984