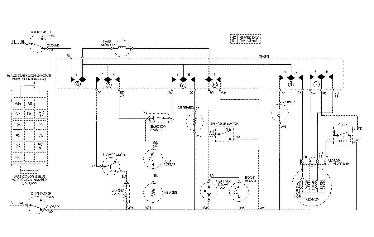
DWC6402AAE 12 – WIRING INFORMATIONadmin2025-04-26T08:45:07+00:00DWC6402AAE 12 – WIRING INFORMATION ProductsPositionProductNIMAY 15001807