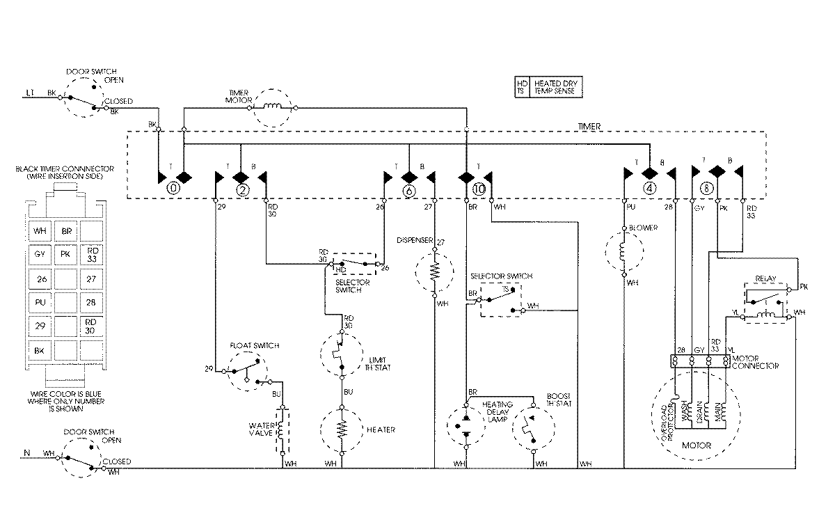
DWC7602ABE 12 – WIRING INFORMATIONadmin2025-04-26T08:44:38+00:00DWC7602ABE 12 – WIRING INFORMATION ProductsPositionProductNIMAY 15001807