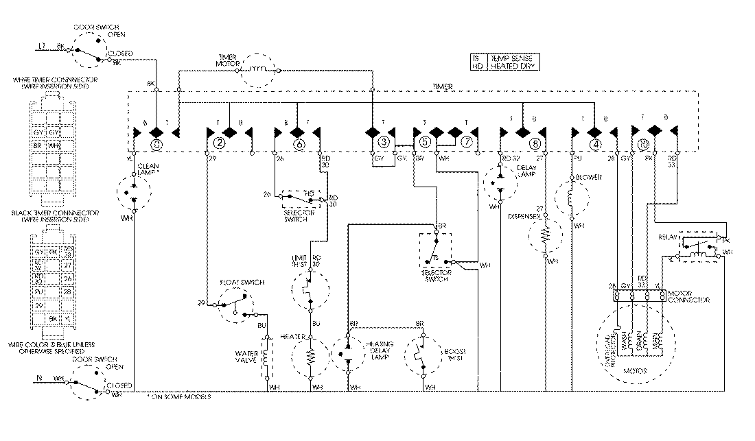
DWU5902AAB 08 – WIRING INFORMATIONadmin2025-04-26T08:44:25+00:00DWU5902AAB 08 – WIRING INFORMATION ProductsPositionProductNIMAY 15001809