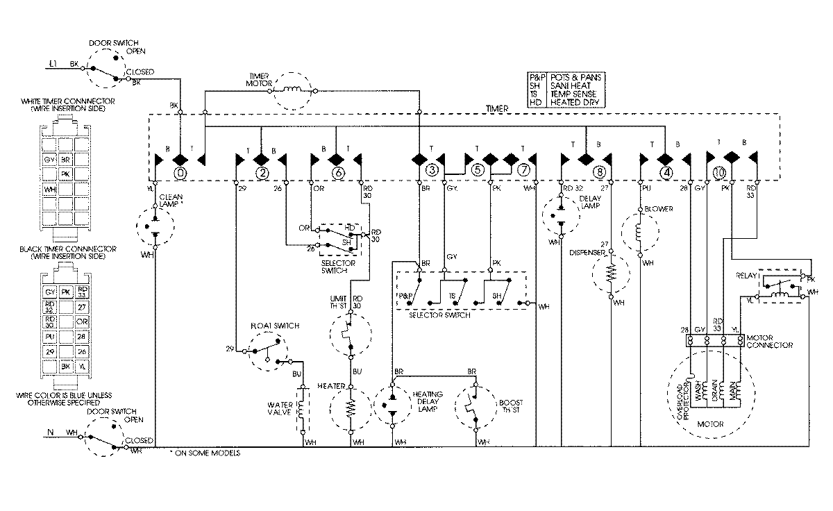
DWU5912AAE 08 – WIRING INFORMATIONadmin2025-04-26T08:44:38+00:00DWU5912AAE 08 – WIRING INFORMATION ProductsPositionProductNIMAY 15001804