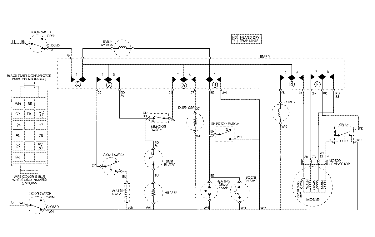
DWU6402AAM 08 – WIRING INFORMATIONadmin2025-04-26T08:44:36+00:00DWU6402AAM 08 – WIRING INFORMATION ProductsPositionProductNIMAY 15001807