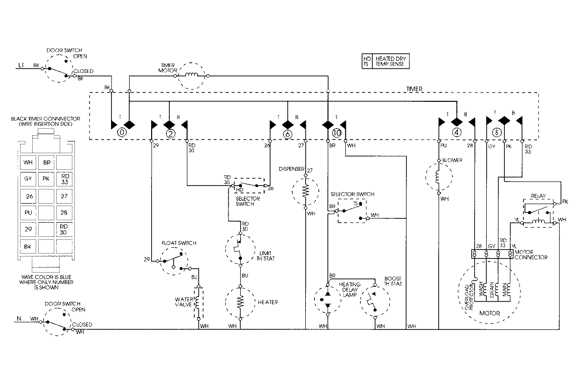
DWU6602AAB 08 – WIRING INFORMATIONadmin2025-04-26T08:44:59+00:00DWU6602AAB 08 – WIRING INFORMATION ProductsPositionProductNIMAY 15001807