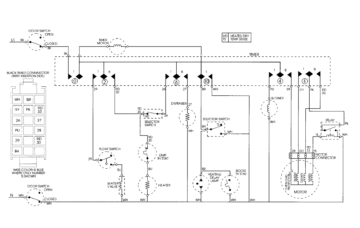
DWU6602AAE 08 – WIRING INFORMATIONadmin2025-04-26T08:44:54+00:00DWU6602AAE 08 – WIRING INFORMATION ProductsPositionProductNIMAY 15001807