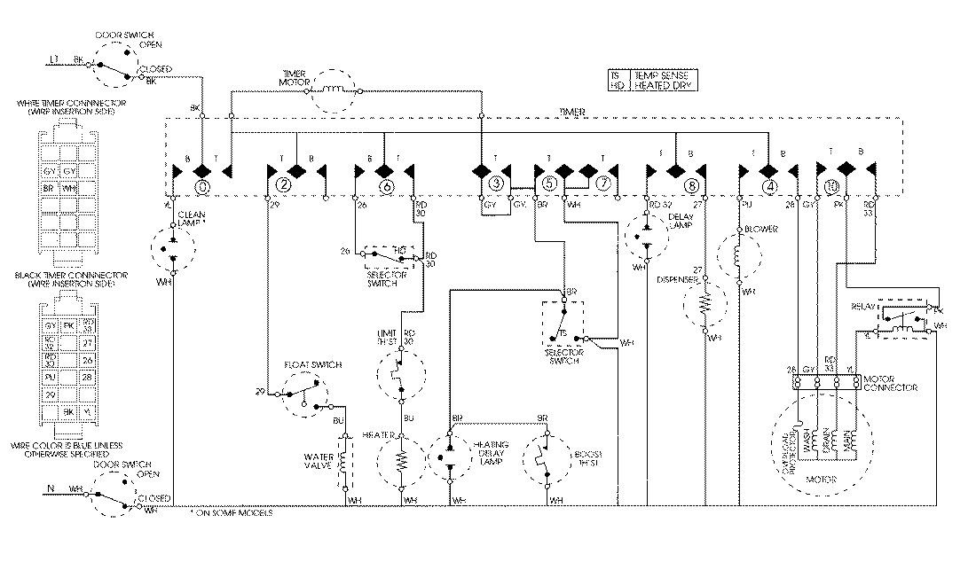
DWU6702AAE 08 – WIRING INFORMATIONadmin2025-04-26T08:45:08+00:00DWU6702AAE 08 – WIRING INFORMATION ProductsPositionProductNIMAY 15001809