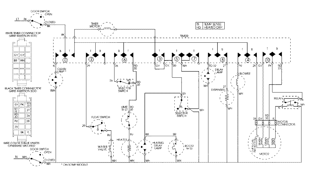
DWU6702AAM 08 – WIRING INFORMATIONadmin2025-04-26T08:45:04+00:00DWU6702AAM 08 – WIRING INFORMATION ProductsPositionProductNIMAY 15001809