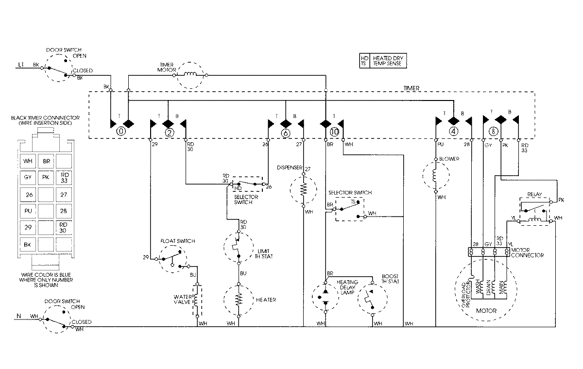
DWU6750AAB 08 – WIRING INFORMATION

DWU6750AAB 08 – WIRING INFORMATION

Products

PositionProduct
NIMAY 15001809