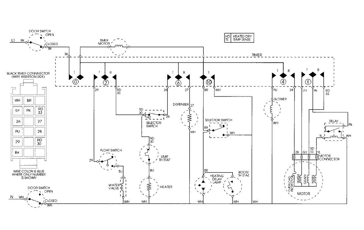
DWU6802AAB 08 – WIRING INFORMATIONadmin2025-04-26T08:44:31+00:00DWU6802AAB 08 – WIRING INFORMATION ProductsPositionProductNIMAY 15001807