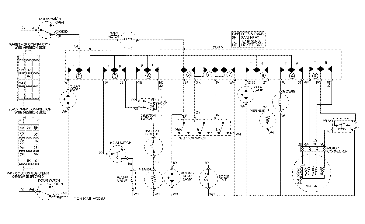
DWU6812AAB 08 – WIRING INFORMATIONadmin2025-04-26T08:44:14+00:00DWU6812AAB 08 – WIRING INFORMATION ProductsPositionProductNIMAY 15001804