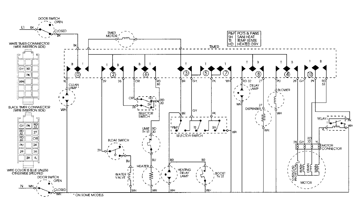
DWU6812AAM 08 – WIRING INFORMATIONadmin2025-04-26T08:44:56+00:00DWU6812AAM 08 – WIRING INFORMATION ProductsPositionProductNIMAY 15001804