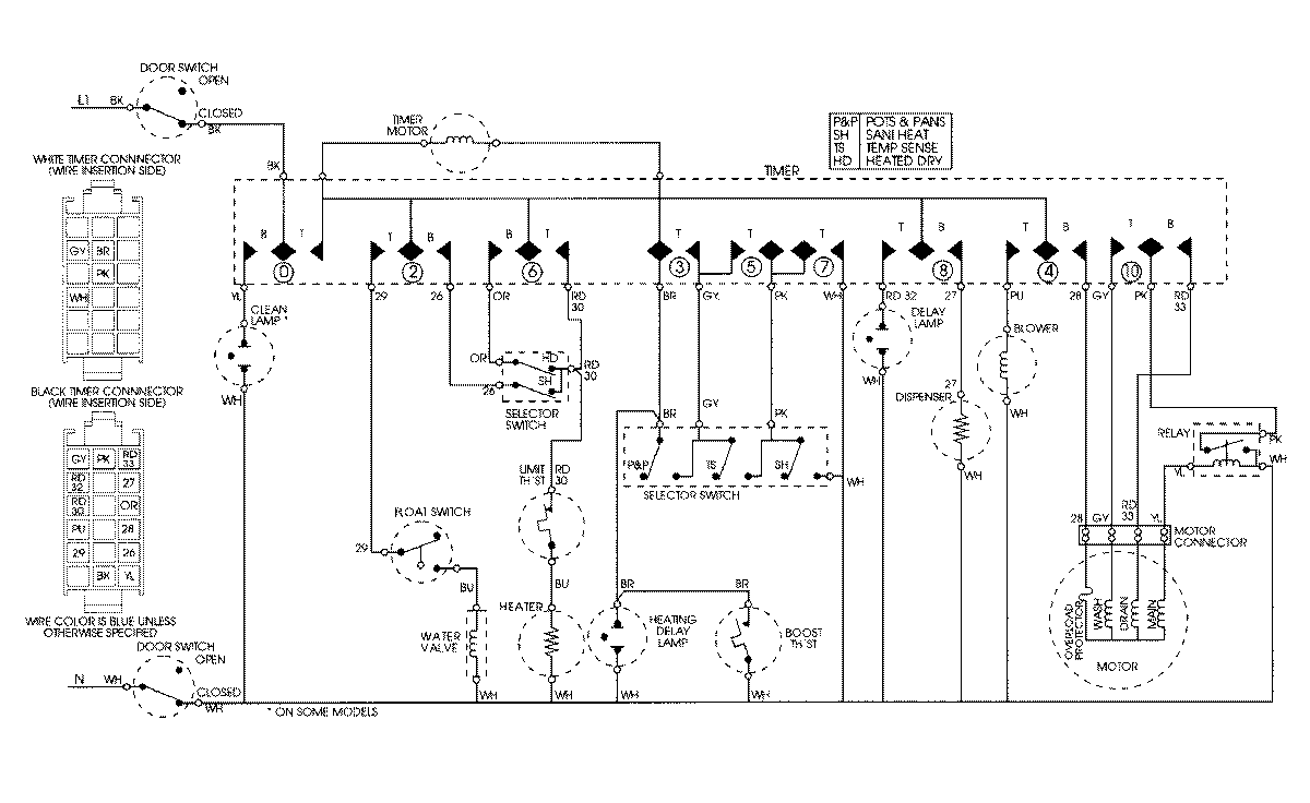
DWU6902AAB 08 – WIRING INFORMATIONadmin2025-04-26T08:44:37+00:00DWU6902AAB 08 – WIRING INFORMATION ProductsPositionProductNIMAY 15001804