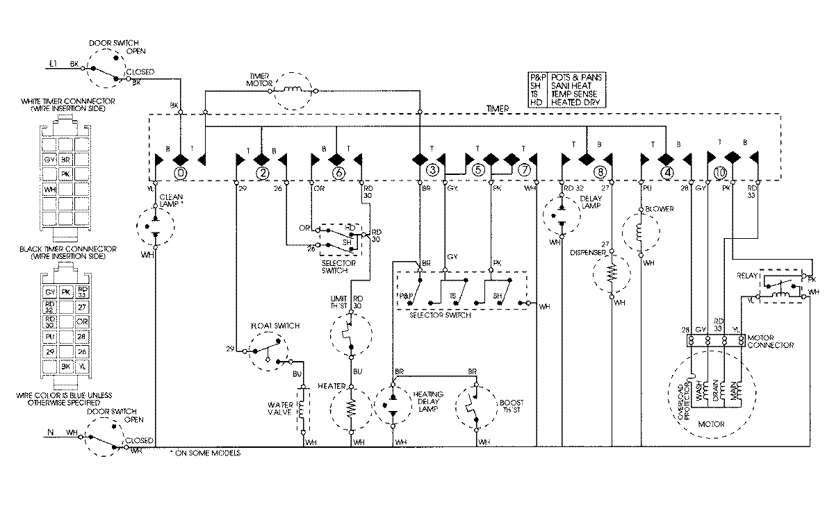
DWU6902AAE 08 – WIRING INFORMATIONadmin2025-04-26T08:44:24+00:00DWU6902AAE 08 – WIRING INFORMATION ProductsPositionProductNIMAY 15001804