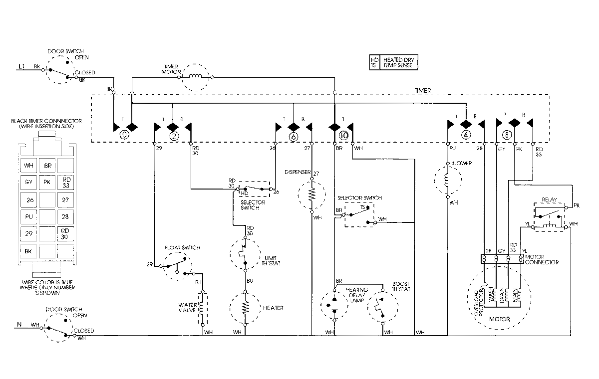
DWU7402AAE 08 – WIRING INFORMATIONadmin2025-04-26T08:44:25+00:00DWU7402AAE 08 – WIRING INFORMATION ProductsPositionProductNIMAY 15001807