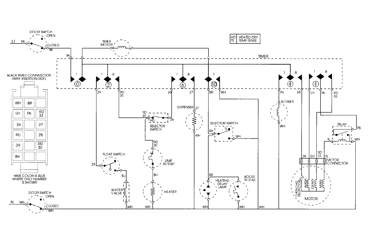
DWU7402AAM 08 – WIRING INFORMATION

DWU7402AAM 08 – WIRING INFORMATION

Products

PositionProduct
NIMAY 15001807