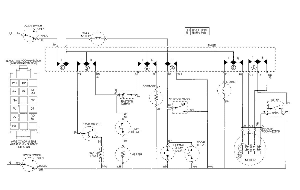
DWU7560AAM 08 – WIRING INFORMATIONadmin2025-04-26T08:44:47+00:00DWU7560AAM 08 – WIRING INFORMATION ProductsPositionProductNIMAY 15001807