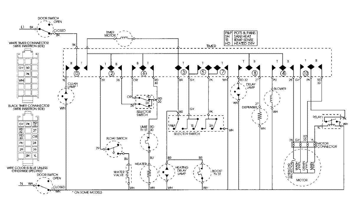
DWU7702AAB 08 – WIRING INFORMATIONadmin2025-04-26T08:45:04+00:00DWU7702AAB 08 – WIRING INFORMATION ProductsPositionProductNIMAY 15001804