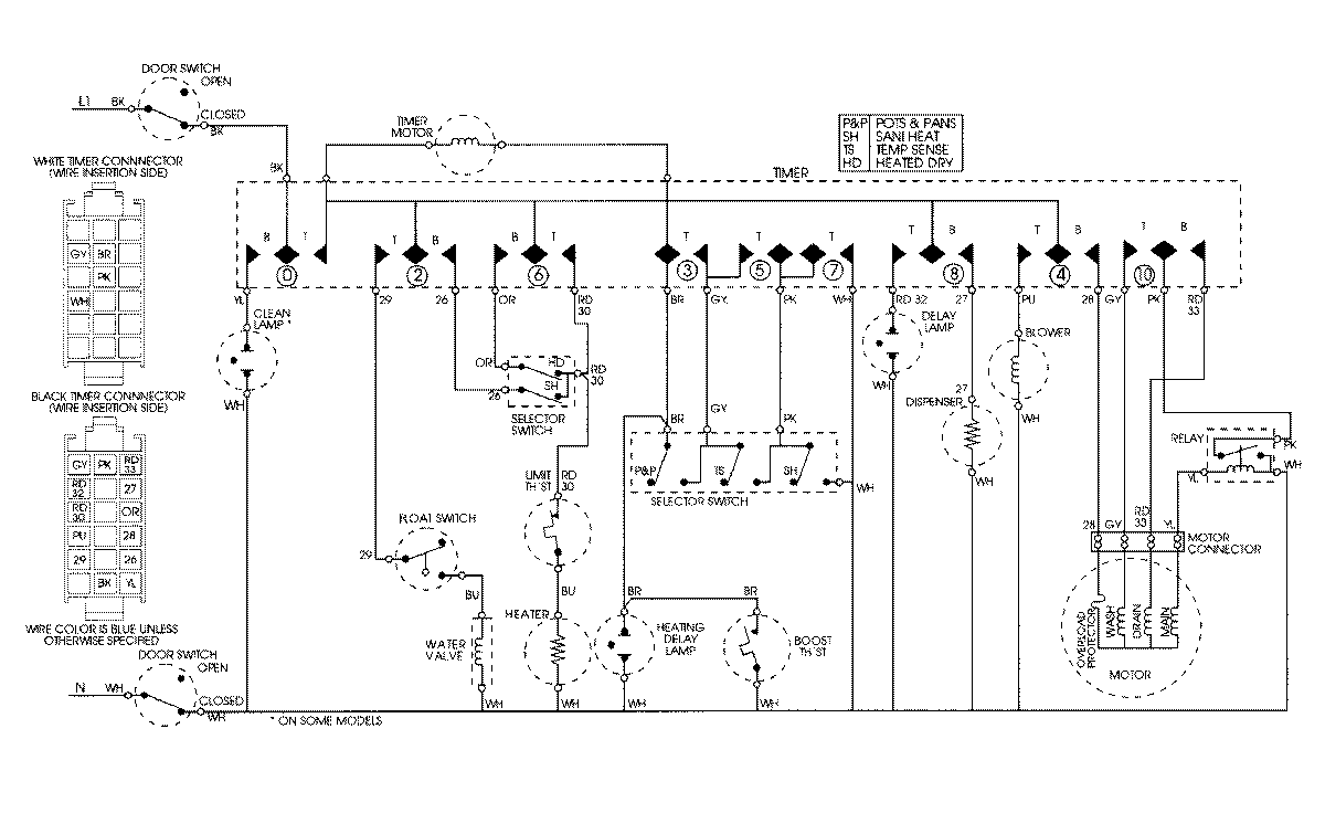
DWU7702AAE 08 – WIRING INFORMATIONadmin2025-04-26T08:45:11+00:00DWU7702AAE 08 – WIRING INFORMATION ProductsPositionProductNIMAY 15001804