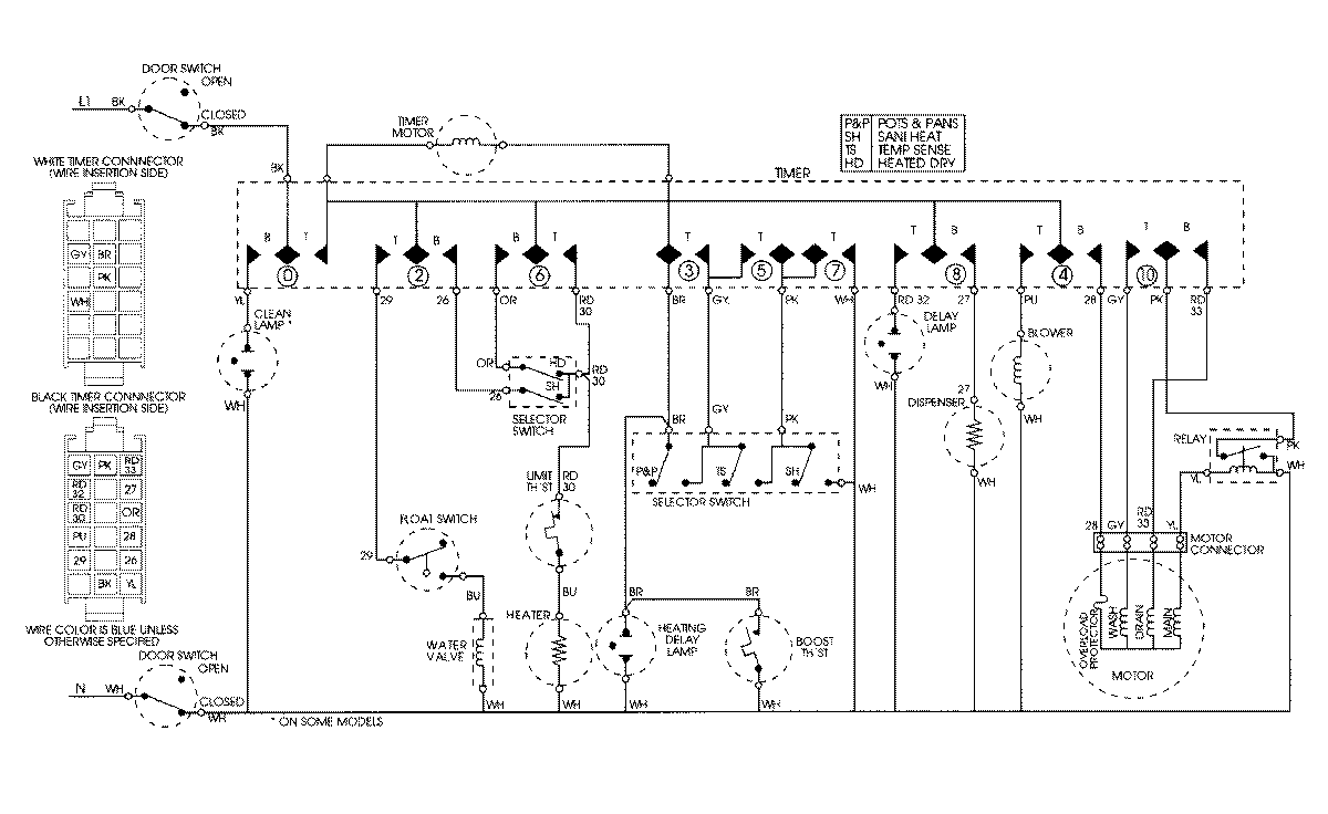
DWU8402AAB 08 – WIRING INFORMATIONadmin2025-04-26T08:44:49+00:00DWU8402AAB 08 – WIRING INFORMATION ProductsPositionProductNIMAY 15001804