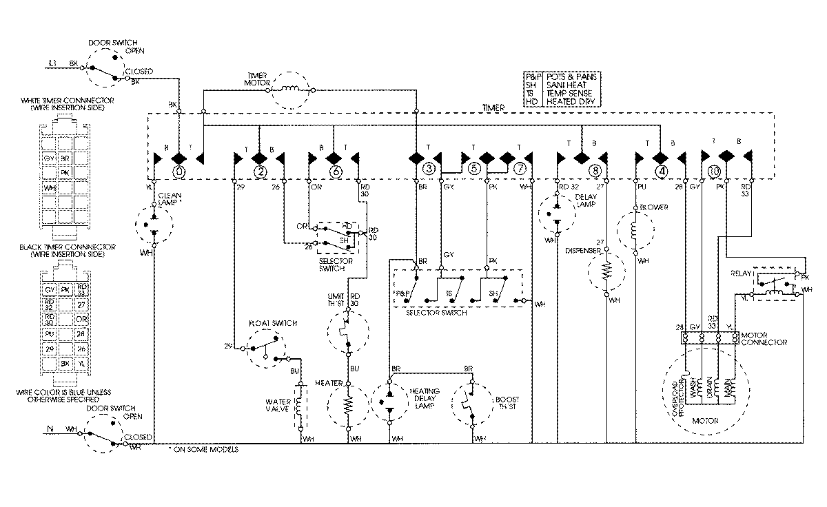
DWU8402AAE 07 – WIRING INFORMATIONadmin2025-04-26T08:44:54+00:00DWU8402AAE 07 – WIRING INFORMATION ProductsPositionProductNIMAY 15001804