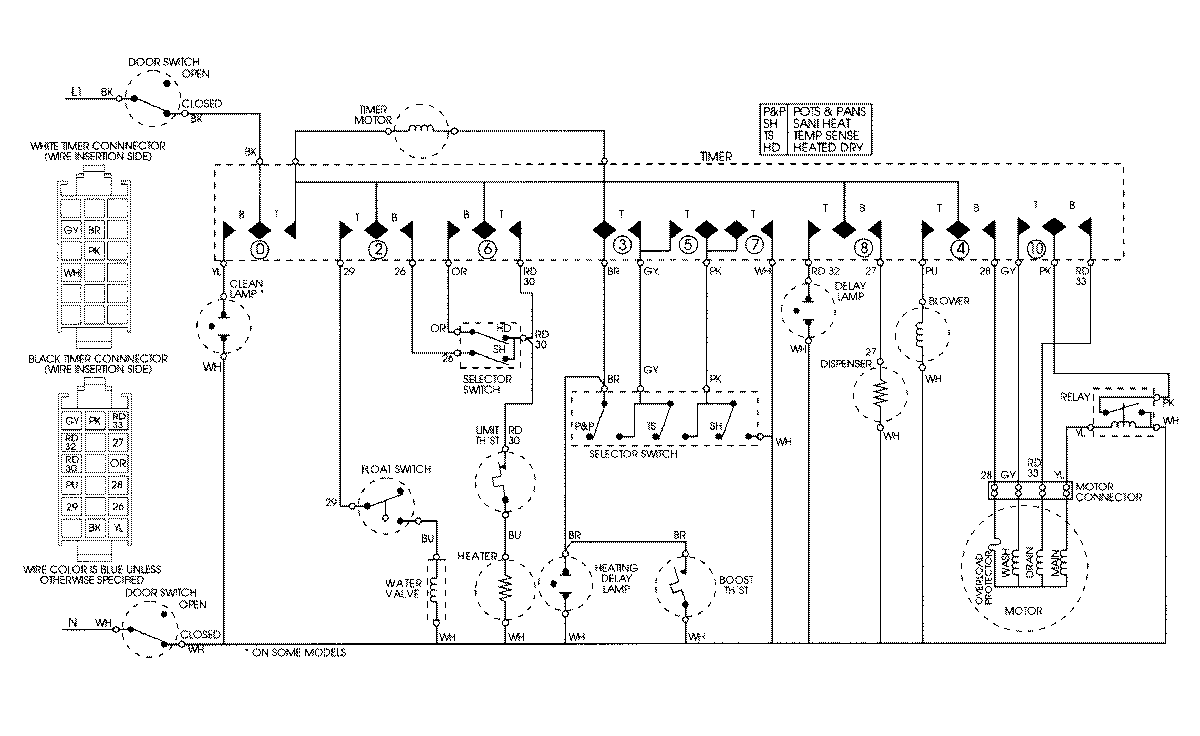
DWU8602AAB 08 – WIRING INFORMATIONadmin2025-04-26T08:45:07+00:00DWU8602AAB 08 – WIRING INFORMATION ProductsPositionProductNIMAY 15001804