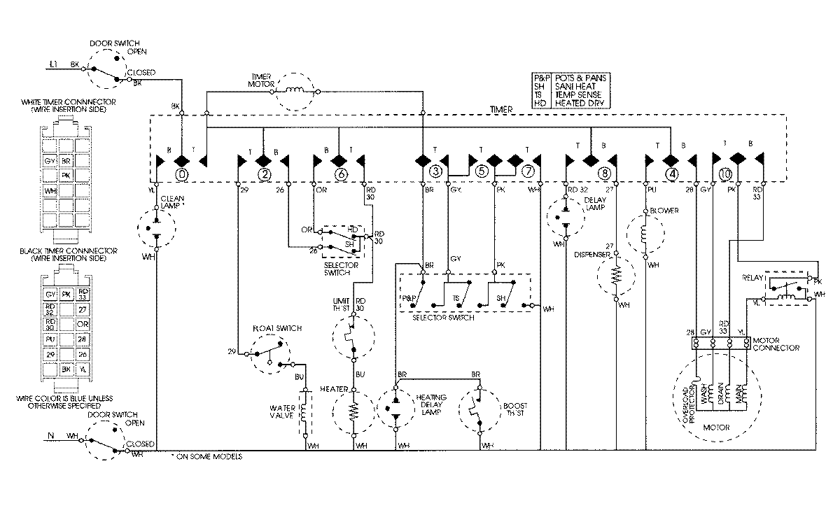
DWU8912AAB 08 – WIRING INFORMATIONadmin2025-04-26T08:44:57+00:00DWU8912AAB 08 – WIRING INFORMATION ProductsPositionProductNIMAY 15001804