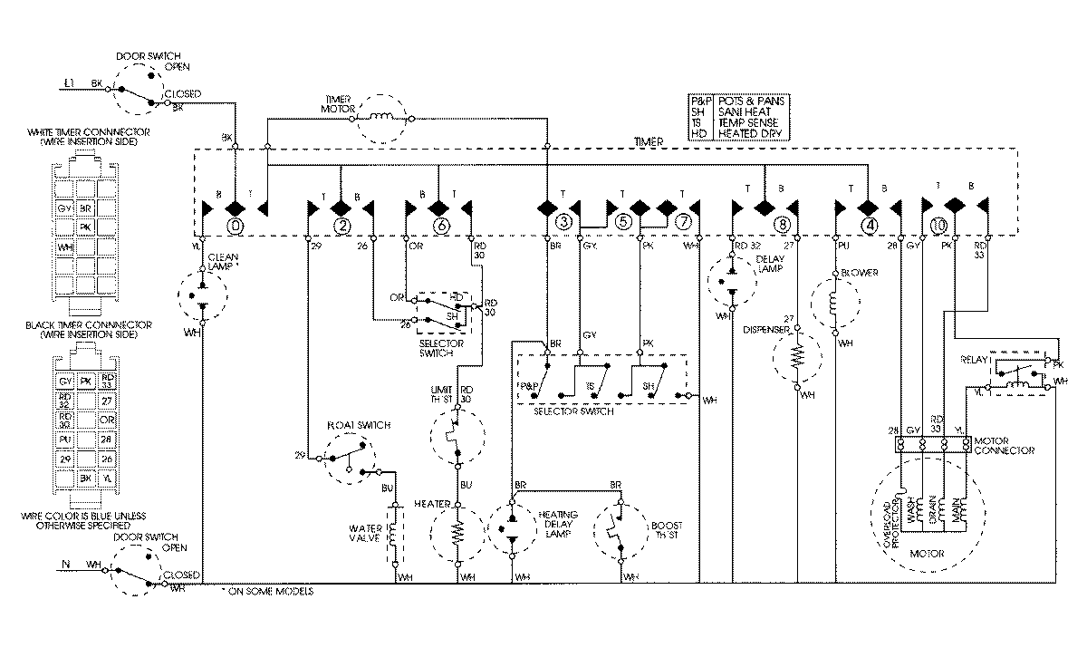
DWU9302AAB 08 – WIRING INFORMATIONadmin2025-04-26T08:45:05+00:00DWU9302AAB 08 – WIRING INFORMATION ProductsPositionProductNIMAY 15001804