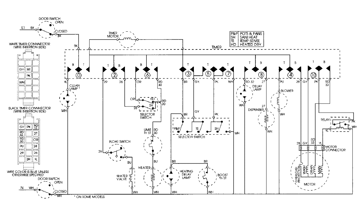
DWU9502AAM 08 – WIRING INFORMATIONadmin2025-04-26T08:44:18+00:00DWU9502AAM 08 – WIRING INFORMATION ProductsPositionProductNIMAY 15001804