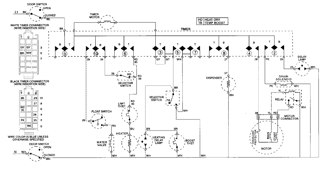
DWUA451AAE 07 – WIRING INFORMATIONadmin2025-04-26T08:44:38+00:00DWUA451AAE 07 – WIRING INFORMATION ProductsPositionProductNIMAY 15002071