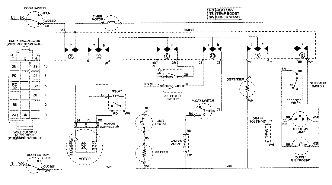
DWUA601AAB 07 – WIRING INFORMATIONadmin2025-04-26T08:44:57+00:00DWUA601AAB 07 – WIRING INFORMATION ProductsPositionProductNIMAY 15001981