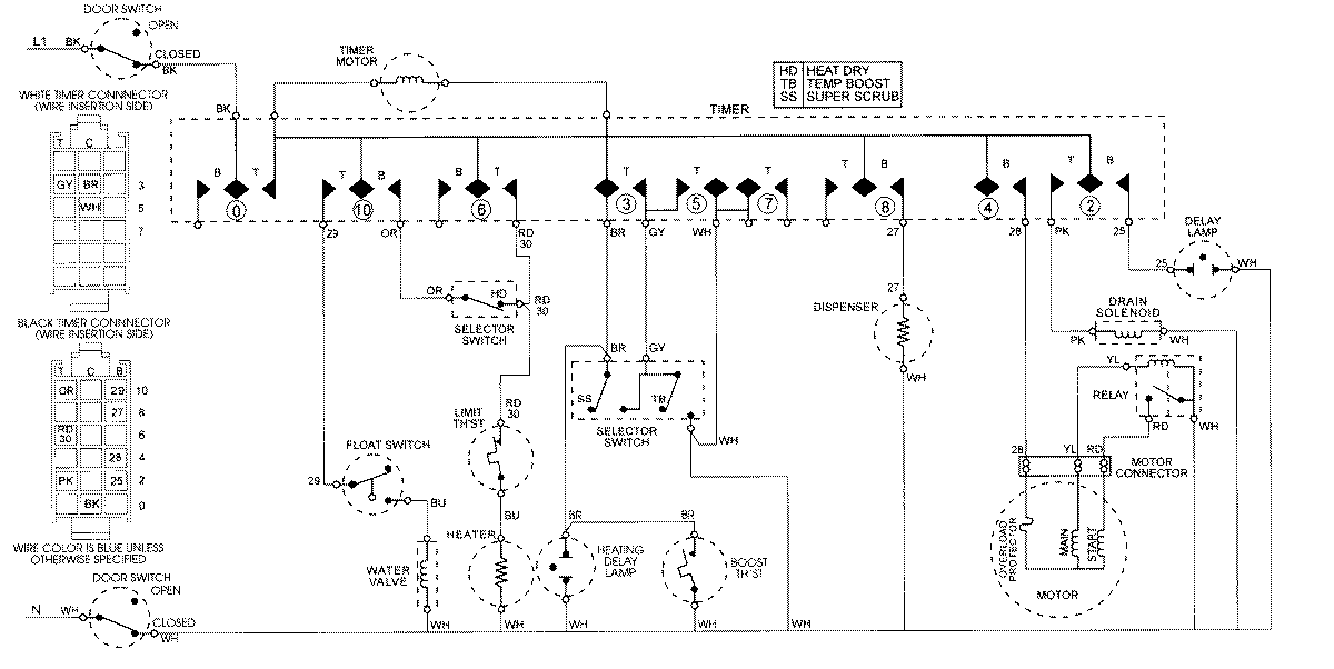
DWUA651AAB 07 – WIRING INFORMATIONadmin2025-04-26T08:45:08+00:00DWUA651AAB 07 – WIRING INFORMATION ProductsPositionProductNIMAY 15002060