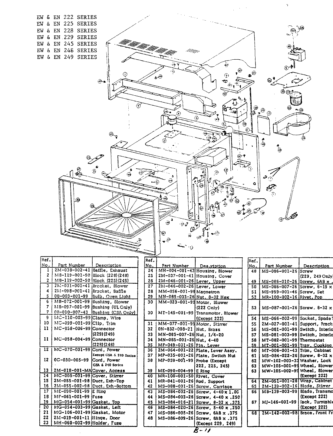
EN245 03 – CABINET & CAVITYadmin2025-04-26T11:58:22+00:00EN245 03 – CABINET & CAVITY ProductsPositionProduct1MAY 2M038002412MAY MB119002503MAY 2M031001414MAY 2M098001415MAY OB003001996MAY MB072001997MAY OB010007437MAY MB097001999MAY MC1100039910MAY MC0990019912MAY MC0700019912MAY OC0300059913MAY 2M018001MA14MAY MC0050019915MAY 2M0550019816MAY 2M0550029817MAY ME0900019918MAY MF0610019919MAY MG0540019920MAY MG0540039921MAY MG1060019922MAY 2M0190011123MAY MH0600029924MAY MH0040014325MAY 2M0370014126MAY 2M0460012627MAY 2M0460022628MAY MM0560019929MAY MN0850032630MAY MM0230019930MAY MT1450019931MAY MM0770019932MAY ON8320082133MAY MN0850072634MAY MN0850012635MAY MP0490012636MAY 2M0640012237MAY MP0350012638MAY MP0590019939MAY ME0900049940MAY MR1000015041MAY MR0410012642MAY MS0880012643MAY MS0840022644MAY MS0840032645MAY MS0840162146MAY MS0840202647MAY MS0860052648MAY MS0860012648MAY MS0860092649MAY MS0860102650MAY MS0860072651MAY MS9990014652MAY MR1000021653MAY MS0870012654MAY MS0660029955MAY 2M0270014156MAY MS0810019957MAY MS0810039958MAY MT0820019959MAY MT0010019960MAY MT0060014361MAY MS0840222662MAY MW1020033363MAY MW1050029963MAY MW1050019964MAY 2M0510012865MAY 2M1390021666MAY MB1390039967MAY MJ1460019968MAY 2M14200298