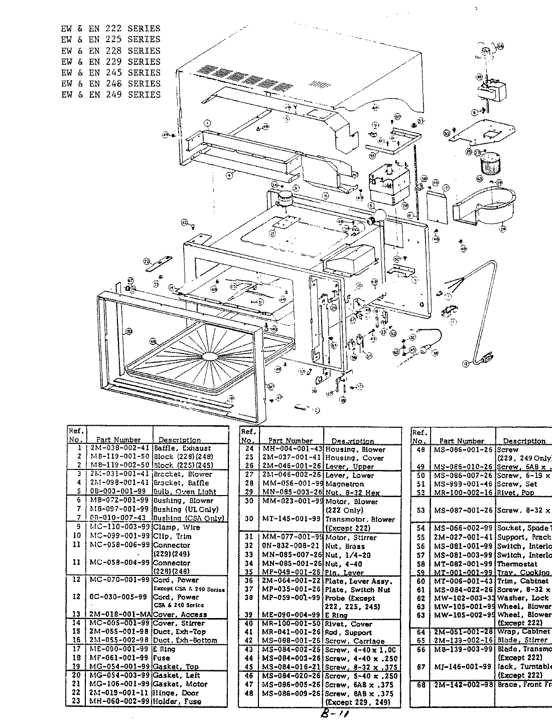
EN249 02 – CABINET & CAVITY