EW30IS6CJSA 03 – CONTROL PANEL/INDUCTION UNITadmin2025-04-26T08:52:31+00:00EW30IS6CJSA 03 – CONTROL PANEL/INDUCTION UNIT
Products
| Position | Product |
|---|
| NI | 5304436875 Frigidaire Oven Screw |
| NI | Clamp,power cord |
| NI | WCI 318341200 |
| NI | WCI 318384488 |
| NI | WCI 318402340 |
| NI | WCI 318402354 |
| NI | WCI 318402397 |
| NI | 5303307980 Frigidaire Oven Screw |
| NI | 5304464772 Frigidaire Refrigerator Wire Tie |
| NI | 5303211311 Frigidaire Refrigerator Screw |
| NI | 5303324184 Frigidaire Wall Oven Range Screw |
| NI | 5304480396 Frigidaire Screw |
| NI | SCREW,TRUSS HEAD,8-18 X 0.375 |
| NI | 5304453707 Frigidaire Oven Screw |
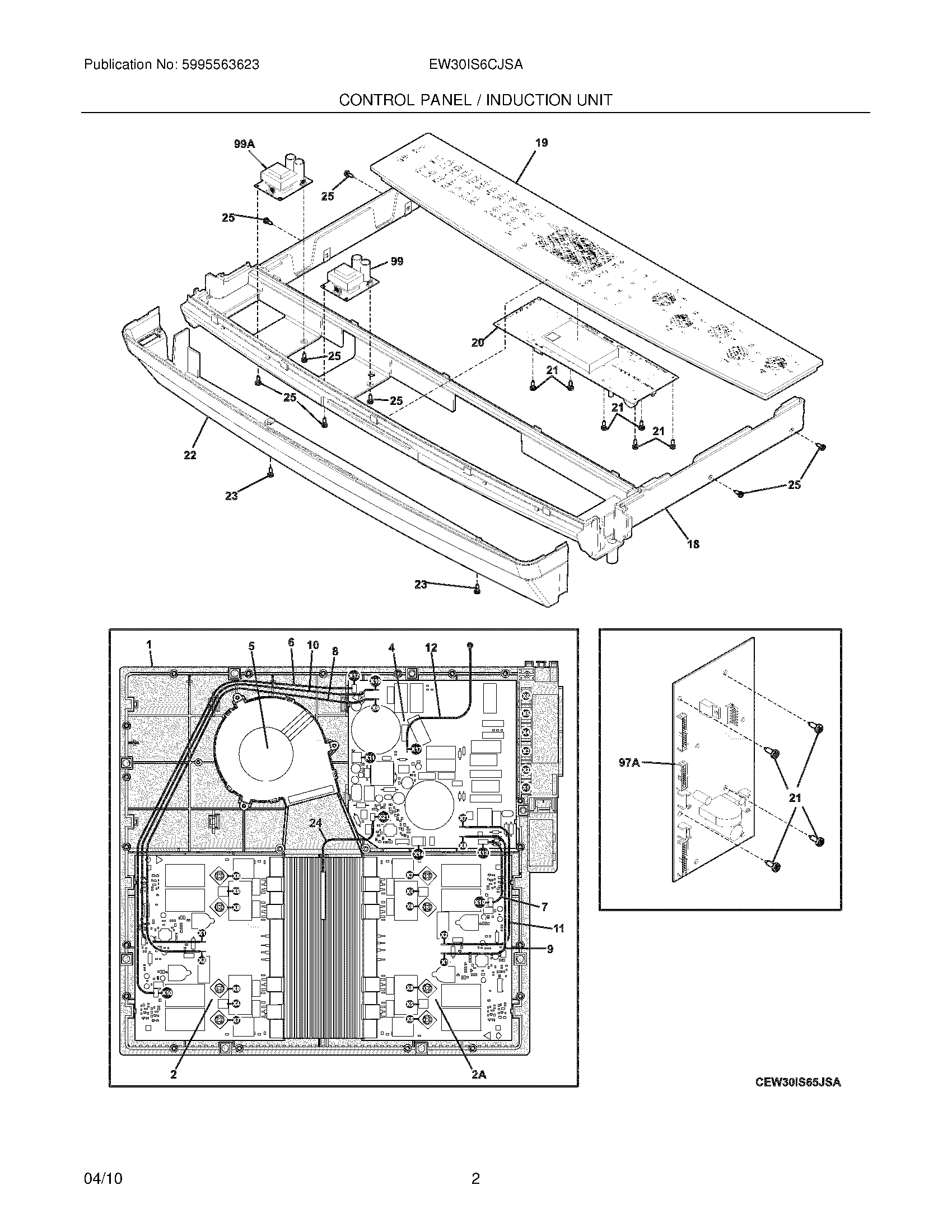
| 1 | 318329602 Frigidaire Oven Housing Assembly |
| 2 | 318347101 Frigidaire Oven Generator |
| 2A | 318347102 Frigidaire Oven Generator |
| 4 | 318347000 Frigidaire Filter |
| 5 | Cooling Fan Assembly,large |
| 6 | Communication Cable,generator ,18`` ,to filter,X10/X12 |
| 7 | Communication Cable,generator ,6`` ,to filter,X10/X13 |
| 8 | WCI 318052581 |
| 9 | WCI 318052580 |
| 10 | WCI 318052582 |
| 11 | WCI 318052579 |
| 12 | WCI 318532141 |
| 18 | WCI 318900302 |
| 19 | WCI 318387122 |
| 20 | 316576610 Frigidaire Electrical Control |
| 21 | 316524400 Frigidaire Oven Screw |
| 22 | 318905005 Frigidaire Oven Panel |
| 23 | SCREW <8-18 X 3/4> |
| 25 | Screw,No.8-18 x 3/8 ,(10) |
| 97A | 316576452 Frigidaire Oven Board |
| 99A | 316435703 Frigidaire Oven Board |
| 99 | 316535200 Frigidaire Oven Control Board |