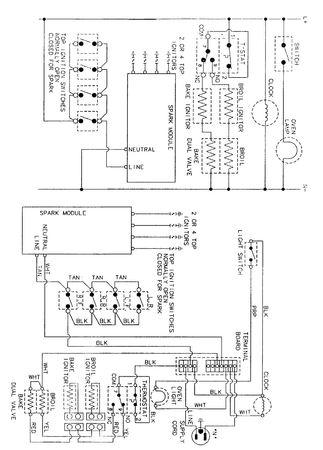
FCG20002W 07 – WIRING INFORMATIONadmin2025-04-26T09:29:25+00:00FCG20002W 07 – WIRING INFORMATION ProductsPositionProductNIMAY 15001861