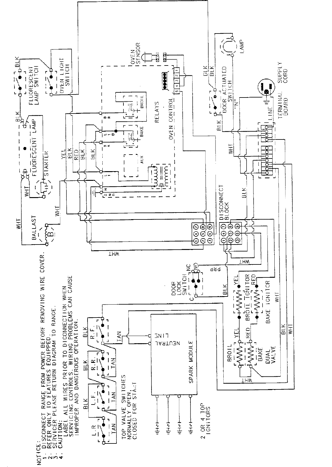
FCG2042W 07 – WIRING INFORMATIONadmin2025-04-26T09:33:58+00:00FCG2042W 07 – WIRING INFORMATION ProductsPositionProductNIMAY 15001129