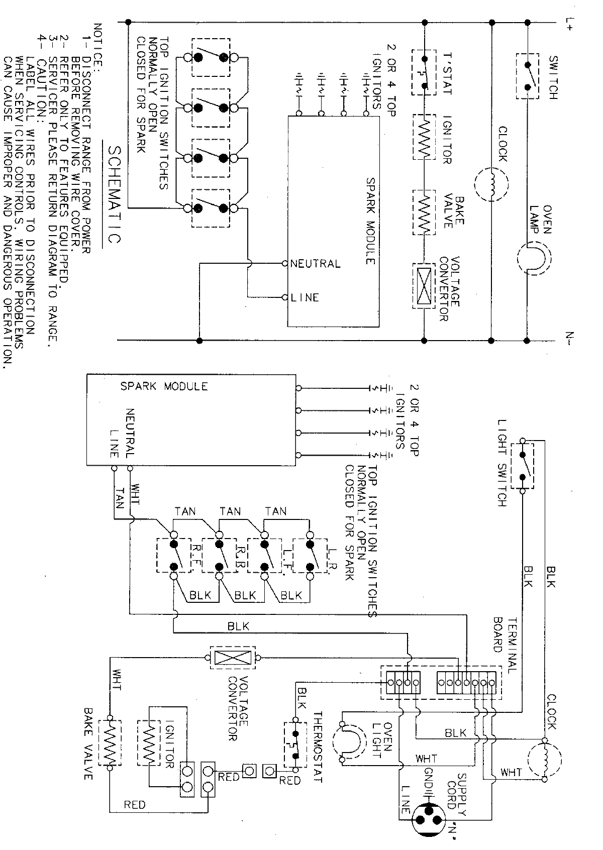
GA3271SXAA 06 – WIRING INFORMATIONadmin2025-04-26T09:25:34+00:00GA3271SXAA 06 – WIRING INFORMATION ProductsPositionProductNIMAY 15001914