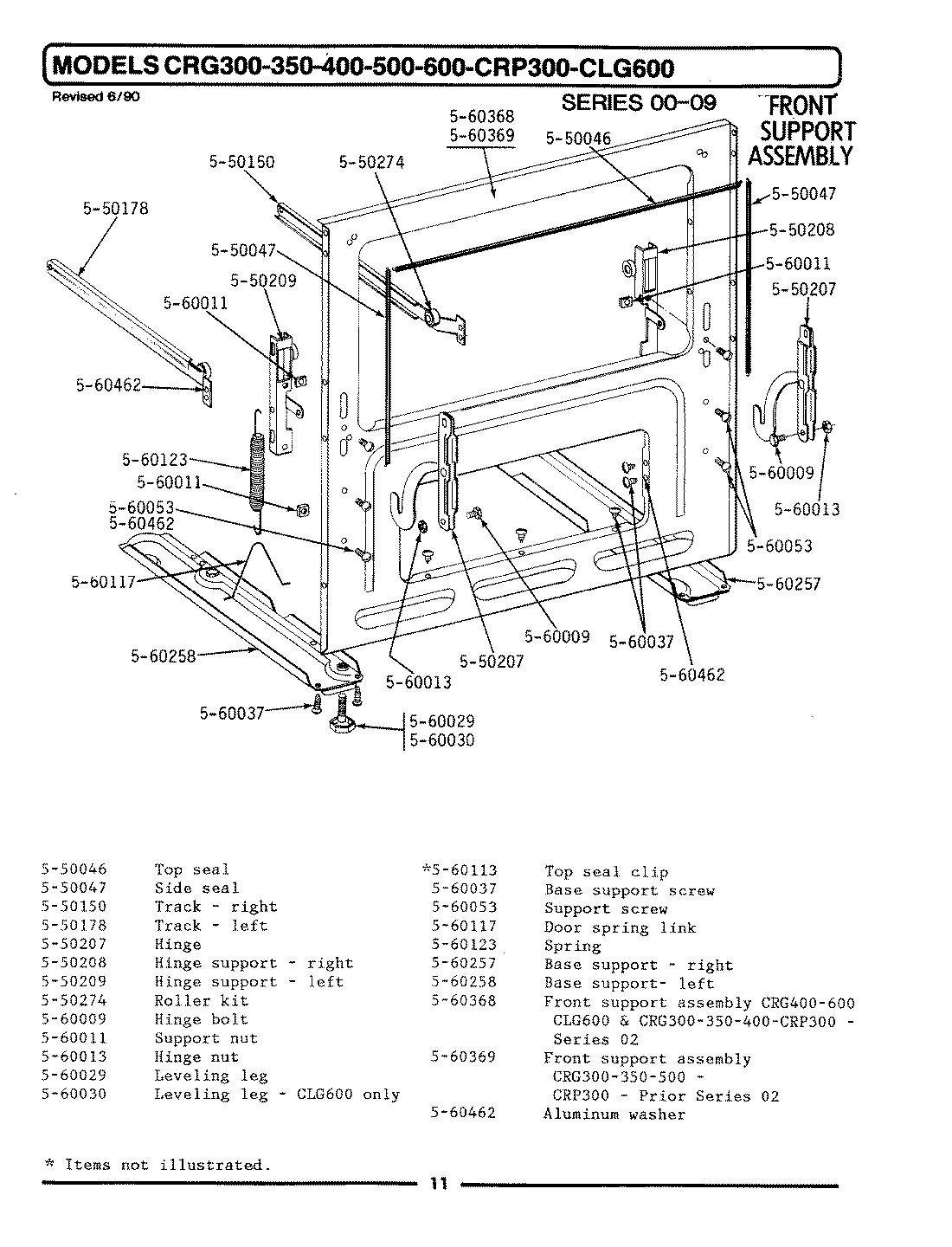
GCRG300 04 – FRONT SUPPORT ASSEMBLY