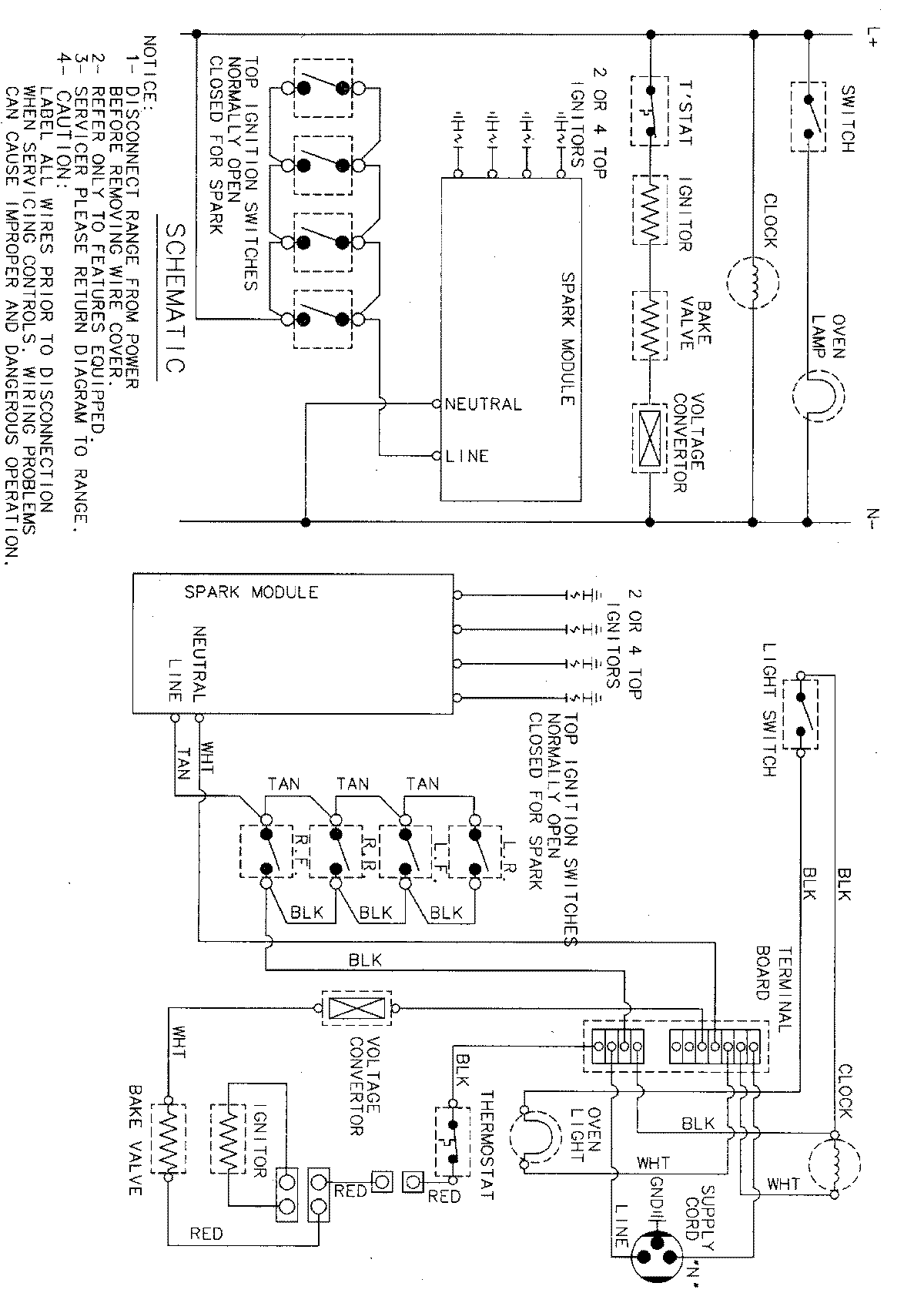
GM31211XAW 07 – WIRING INFORMATIONadmin2025-04-26T09:00:43+00:00GM31211XAW 07 – WIRING INFORMATION ProductsPositionProductNIMAY 15001914