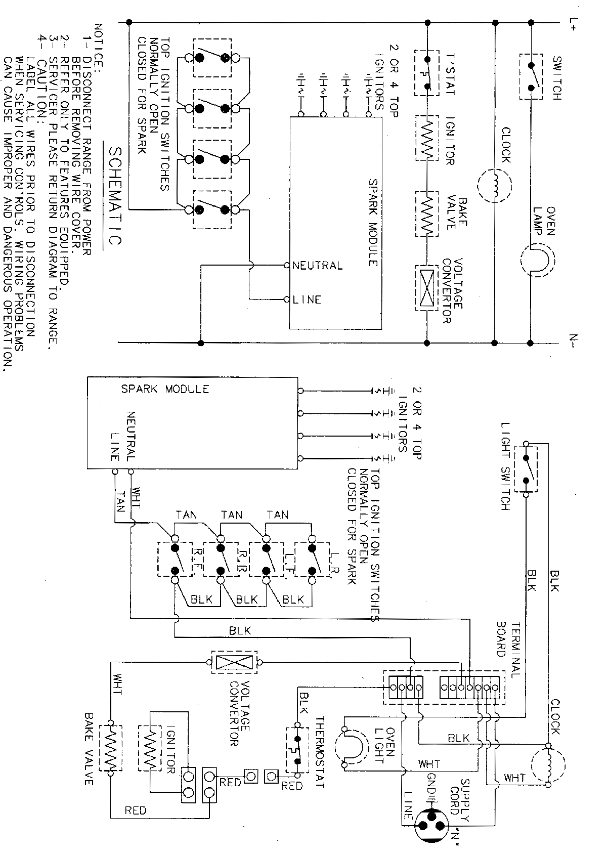
GS3221SXAW 07 – WIRING INFORMATIONadmin2025-04-26T09:03:57+00:00GS3221SXAW 07 – WIRING INFORMATION ProductsPositionProductNIMAY 15001914