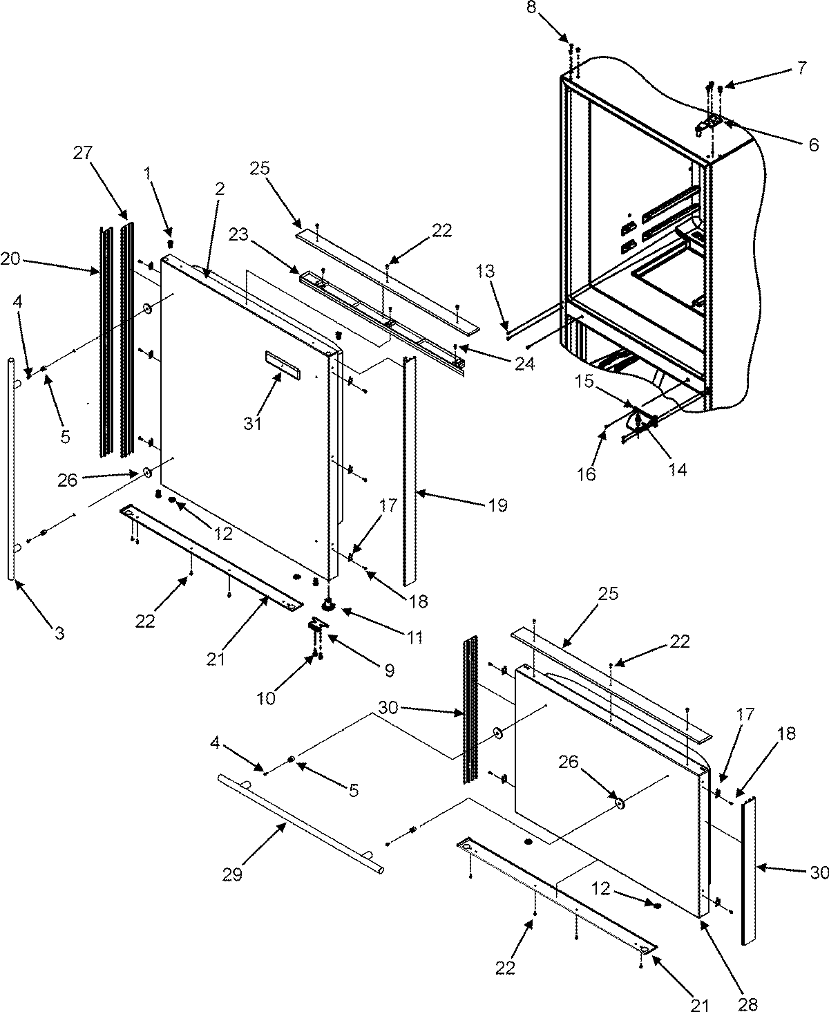
JBC2088HTB 06 – DOORS (OUTER)admin2025-04-26T09:15:37+00:00JBC2088HTB 06 – DOORS (OUTER) ProductsPositionProduct167004978 Whirlpool Refrigerator Black Door Bushing2DOOR ASSY., REF. FOAM (BLK)3WP12850910 Whirlpool Refrigerator Handle4340184 Whirlpool Screw5MAY 670031146MAY 67001695612626910ED Whirlpool Refrigerator Door Hinge7MAY M02387318MAY M03107319W11708403 Whirlpool Door Stop10MAY M021153311WP67003639 Whirlpool Refrigerator Closer1267004838 Whirlpool Refrigerator Button Vent Plug14WP67006642 Whirlpool Refrigerator Pin15WP12607104ED Whirlpool Refrigerator Door Hinge15HINGE, CENTER (BLK)16WP489349 Whirlpool Refrigerator Screw1767002451 Whirlpool Refrigerator Handle Clip Assembly18WP489399 Whirlpool Refrigerator Screw19MAY 6700220120MAY 6700243521MAY 6700219422W11245710 Whirlpool Refrigerator Screw23EXTENSION, REF DR (BLK)24SCREW 1``25MAY 6700225226MAY 6700311327MAY 6700311628DOOR ASSY., FRZ. FOAM (BLK)29WP12850909 Whirlpool Refrigerator Handle30MAY 670029953112848704 Whirlpool Refrigerator Nameplate